Attention aux piratages ! Gardez à l’esprit qu’aucune de nos agences ne vous demandera de payer pour vous faire visiter un bien. En cas de doutes, contacter directement nos agences par téléphone.

3
Estimer mon bien tæ
Accueil > Louer >

Location appartement 3 pièces 82.8 m² à Tourcoing (59200) 973 € / mois CC

< Revenir à la page précédente
< Précédente Annonce Suivante >

Appartement 3 pièces à louer

Tourcoing (59200) | Réf. : 395

Loyer : 973 € / mois CC

Loyer Hors Charges : €

Charges : 115 €

Honoraires à charge locataire TTC : 1 076,40 €

dont état des lieux : 248,40 €

Dépôt de garantie : 858 €

S
2 chambres
U
1 salle de bain
7
82.8 m²
1
1 parking

(CC) : Charges Comprises

Annonce 395 Contacter IMMO DE FRANCE ; Marie PLATTEEURO au O6.73.74.42.57 A louer, un grand et bel appartement situé allée des confiseurs à Tourcoing; idéalement situé à 2 min a pied du tramway Ma Campagne
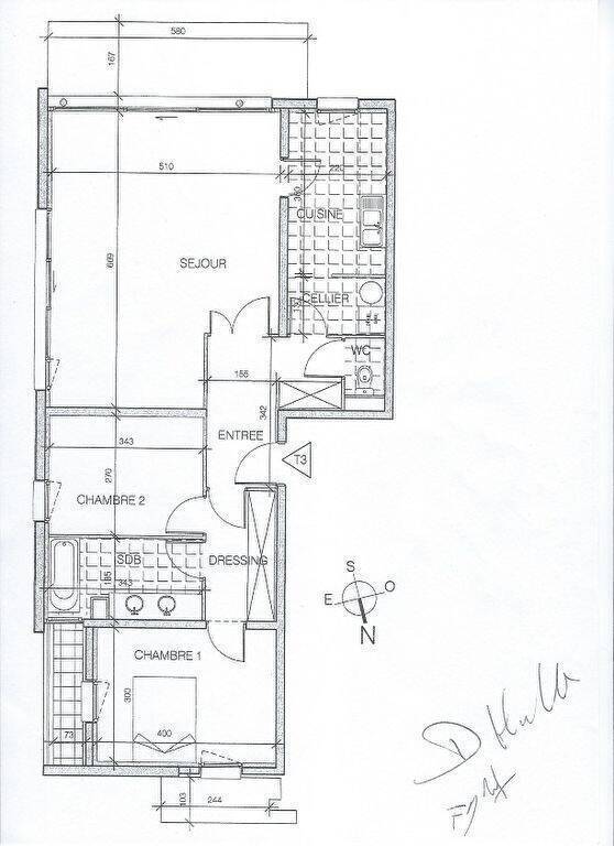
Il vous offre ; un hall d'entrée, un grand séjour (placards) de 31.20m² donnant accès sur une terrasse de 9.7m², WC , un dégagement avec placard, une cuisine équipée (éléments hauts et bas de rangement, plaques, hotte, four et réfrigérateur) 2 chambres (dont une avec accès balcon), une salle de bains (baignoire et meuble vasque)
Garage - A visiter sans tarder !
Disponible de suite à la location
Surface habitable : 82.8 m²
Surface séjour : 31.2 m²
Étage : 2
Nbre de salle de bains : 1
Nbre de garage : 1
Type chauffage : Individuel

Diagnostic de performance énergétique

C
v Date de réalisation : 06/11/2025
Classe énergie
C
169 kWh/m².an
Classe climat
A
5 kg CO2/m².an

Estimation des coûts annuels d’énergie du logement
Entre 1 124 € et 1 520 € par an
Prix moyens des énergies indexés sur l'année 0 (abonnements compris)

Loyer : 973 € / mois CC

Loyer Hors Charges : €

Charges : 115 €

Honoraires à charge locataire TTC : 1 076,40 €

dont état des lieux : 248,40 €

Dépôt de garantie : 858 €

S
2 chambres
U
1 salle de bain
7
82.8 m²
1
1 parking

(CC) : Charges Comprises

Nous appeler
Abonnez-vous à nos offres spéciales investisseurs

Localisation & services de proximité

D'autres 3 pièces à Tourcoing


Nous contacter pour ce bien
Laissez-nous vos coordonnées

J'envisage aussi de mettre un bien à la vente

Obtenir une estimation
J’accepte de recevoir des informations sur l’immobilier, les nouvelles réglementations et les nouvelles offres et produits personnalisés de IMMO de France Lille**.

Si vous cochez non, vous indiquez que vous ne souhaitez pas recevoir de lettre d’information sur l'actualité de l’immobilier, les offres et produits du réseau IMMO de France

En cliquant sur Envoyer vous acceptez de recevoir des informations concernant le bien présenté ci-dessus et des offres similaires susceptibles de vous intéresser.

*Champs obligatoires
**Recueil de vos informations personnelles afin de pouvoir gérer la gestion de la relation client et apporter conseils et informations complémentaires au niveau de la marque IMMO de France et le cas échéant au niveau des partenaires et prestataires. En application de la loi Informatique et libertés du 06.01.1978, vous disposez d'un droit d'interrogation d'accès, de rectification et d'opposition pour motifs légitimes relativement à l'ensemble des données vous concernant qui s'exercent par courrier électronique adressé à: communication-nordpasdecalais@immodefrance.com ou par courrier à IMMO DE FRANCE NORD PAS DE CALAIS 28 rue des Arts BP 215 - 59002 - LILLE Cedex, accompagné d'une copie d'un titre d'identité. Par ailleurs, si vos coordonnées téléphoniques ont été recueillies, vous pouvez vous inscrire sur la liste d’opposition au démarchage téléphonique prévue en faveur des consommateurs par l’article L223-1 du code de la consommation. Pour plus d'informations consulter nos Mentions légales

Nous vous accompagnons pour réaliser
au mieux votre projet immobilier

IMMO de France Nord - Lille

547 avenue Willy Brandt

59000 - Lille

Horaires, équipes Nous appeler Nous contacter Localiser l'agence
t Alerte mail 4 Ma sélection À Avis clients j Simulateur de prêt
cookie